Skip To Content

12445 Witt Place

Poway, CA 92064
  • $949,000
  • STATUS: Active Under Contract
  • ON SITE: 5 Days
  • ID#: PTP2601506
Under Contract
UPDATED: 36 min ago
$949,000
  • 4
    BEDS
  • N/A
    ACRES
  • 2
    BATHS
  • 0
    1/2 BATHS
  • 1,988
    SQFT
  • $477
    $/SQFT
Neighborhood:
Type:
Single-Family Home
Built:
1959
County:

Description

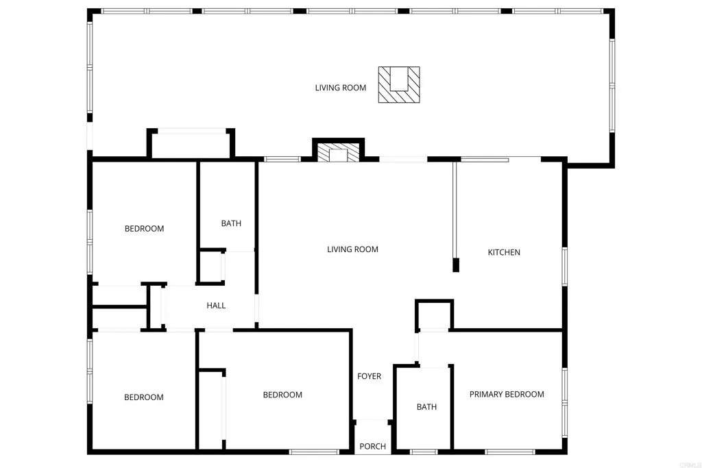
Welcome to this charming single-story home located in the highly sought-after community of Poway. With its top-rated school district, safe neighborhoods and strong community vibe, Poway is the place to live. This wonderful home is tucked away on a quiet cul-de-sac and set on a .25 ac lot. Offering nearly 2,000 square feet of living space, this home features 4 bedrooms and 2 bathroomsperfect for todays flexible lifestyle. The expansive 49' x 13.5' family room creates an ideal space for entertaining and everyday living. The unique, stand alone wood burning copper fireplace is a spectacular feature offering warmth on cool winter nights. There's a large two-car garage which provides ample storage as well. Step outside to a generous backyard with mature landscaping, beautiful views, and endless possibilities for outdoor enjoyment. Some rooms have been freshly painted plus a newer roof installed in 2023 and updated HVAC and hot water tank. While it may offer an opportunity for updates, this home has been lovingly maintained. It presents incredible potential to create your dream home in one of San Diego Countys most desirable communities. Some photos have been digitally enhanced.

Monthly Payment Calculator



San Diego MLS logo This information is deemed reliable but not guaranteed. You should rely on this information only to decide whether or not to further investigate a particular property. BEFORE MAKING ANY OTHER DECISION, YOU SHOULD PERSONALLY INVESTIGATE THE FACTS (e.g. square footage and lot size) with the assistance of an appropriate professional. You may use this information only to identify properties you may be interested in investigating further. All uses except for personal, non-commercial use in accordance with the foregoing purpose are prohibited. Redistribution or copying of this information, any photographs or video tours is strictly prohibited. This information is derived from the Internet Data Exchange (IDX) service provided by San Diego MLS. Displayed property listings may be held by a brokerage firm other than the broker and/or agent responsible for this display. The information and any photographs and video tours and the compilation from which they are derived is protected by copyright. Compilation © 2026 San Diego MLS, Inc. Licensed in the state of California.
www.forsalesandiego.com/homes/173442886
Print Image

12445 Witt Place Poway, CA 92064

  • Price: $949,000
  • Status: Active Under Contract
  • On Site: 5 Days
  • Updated: 36 min ago
  • ID#: PTP2601506
4
Beds
2
Baths
0
½ Baths
N/A
Acres
1,988
SQFT
$477
$/SQFT
1959
Built
Neighborhood:
Poway (92064)
County:
San Diego
Area:
Poway (92064)
Elementary School:
Poway Unified School District
Middle School:
Poway Unified School District
High School:
Poway Unified School District
Property Description
Welcome to this charming single-story home located in the highly sought-after community of Poway. With its top-rated school district, safe neighborhoods and strong community vibe, Poway is the place to live. This wonderful home is tucked away on a quiet cul-de-sac and set on a .25 ac lot. Offering nearly 2,000 square feet of living space, this home features 4 bedrooms and 2 bathroomsperfect for todays flexible lifestyle. The expansive 49' x 13.5' family room creates an ideal space for entertaining and everyday living. The unique, stand alone wood burning copper fireplace is a spectacular feature offering warmth on cool winter nights. There's a large two-car garage which provides ample storage as well. Step outside to a generous backyard with mature landscaping, beautiful views, and endless possibilities for outdoor enjoyment. Some rooms have been freshly painted plus a newer roof installed in 2023 and updated HVAC and hot water tank. While it may offer an opportunity for updates, this home has been lovingly maintained. It presents incredible potential to create your dream home in one of San Diego Countys most desirable communities. Some photos have been digitally enhanced.
Exterior Features

Entry Level 1 Fencing Chain LinkVinyl Parking Features GarageGarage - Single Door Parking Total 5 Pool Features N/K Roof Asbestos Shingle View Mountains/Hills Water Heater Type Gas

Interior Features

Appliances DishwasherDisposalRefrigeratorGas Stove Bathrooms Total 2 Common Walls No Common Walls Cooling Central Forced Air Flooring Linoleum/Vinyl Heating Forced Air Unit Interior Features Corian Counters Levels 1 Story Searchable Rooms OfficeKitchenLiving RoomSeparate Family Room

Property Features

Assessments Unknown Association Fee 0 Building Area Total 1988 CFDMello Roos Fee Reflct Year Listing Terms CashConventionalExchangeFHAVA Miscellaneous Foothills Monthly Total Fees 8 Number Of Units In Community 1 Property Sub Type Detached Sale Rent For Sale Sewer Public Sewer Site Cul-De-SacCurbsSidewalks Special Listing Conditions Standard Stories 1 Zoning R-1:SINGLE

San Diego MLS logo Listing provided courtesy of Deneen Maillet of Coldwell Banker West: 619-745-5410. Listing information © 2026 San Diego MLS Inc. Source:


San Diego MLS logo This information is deemed reliable but not guaranteed. You should rely on this information only to decide whether or not to further investigate a particular property. BEFORE MAKING ANY OTHER DECISION, YOU SHOULD PERSONALLY INVESTIGATE THE FACTS (e.g. square footage and lot size) with the assistance of an appropriate professional. You may use this information only to identify properties you may be interested in investigating further. All uses except for personal, non-commercial use in accordance with the foregoing purpose are prohibited. Redistribution or copying of this information, any photographs or video tours is strictly prohibited. This information is derived from the Internet Data Exchange (IDX) service provided by San Diego MLS. Displayed property listings may be held by a brokerage firm other than the broker and/or agent responsible for this display. The information and any photographs and video tours and the compilation from which they are derived is protected by copyright. Compilation © 2026 San Diego MLS, Inc. Licensed in the state of California.
 
https://bt-photos.global.ssl.fastly.net/sandiego/orig_boomver_1_306653433-1.jpg https://bt-photos.global.ssl.fastly.net/sandiego/orig_boomver_1_306653433-1.jpg https://bt-photos.global.ssl.fastly.net/sandiego/orig_boomver_1_306653433-1.jpg
Logo
Yarbrough Group
2305 Historic Decatur Rd Suite 100
San Diego CA, 92106